
A vendre, Maison / Villa, 91 m²
Sainte Suzanne (97441)
DESCRIPTIF DE L'ANNONCE
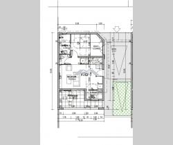
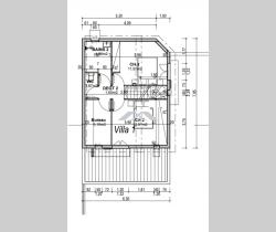
MAXImmo vous propose une villa F4 neuve en duplex de 91 m², sur un terrain d'environ 160m² disponible en vente sur plan (VEFA) dans le secteur prisé des Deux-Rives à Sainte-Suzanne. Idéale pour l'accession à la propriété ou un investissement locatif éligible à la Loi Girardin. Cette villa est conçue sur deux niveaux, offrant au rez-de-chaussée un séjour, une cuisine, une chambre, une salle de bain avec WC et une véranda. L'étage distribue deux chambres, un bureau, et une seconde salle de bain avec WC. Sa localisation stratégique permet un accès aux commodités en 5 minutes et à la voie rapide en 10 minutes. La construction est rapide, avec une livraison possible en 10 mois. Votre achat est sécurisé par les garanties Dommages Ouvrages et Décennales. Saisissez cette chance d'investir dans un bien de qualité. Contactez-nous pour en savoir plus sur cette opportunité. Honoraires TTC charge vendeur Mandat n° 13 257 Réseau MAXImmo - Plus d'informations et consultation de nos tarifs sur www.maximmo.re . Les informations sur les risques auxquels ce bien est exposé sont disponibles sur le site Géorisques : www.georisques.gouv.fr' Honoraires à la charge du vendeur. Non soumis au DPE. Les informations sur les risques auxquels ce bien est exposé sont disponibles sur le site Géorisques : georisques.gouv.fr. Votre conseiller MAXImmo : Sébastien GRONDIN Agent commercial (Entreprise individuelle)
Prix : 275 000 €
Référence Annonce 13257_974-167SG-61RC-MAXIMMO
Consulter nos honoraires agences
Annonce redigée et publiée par un agent Mandataire
Caractéristiques
| Parue le | 09/12/2025 |
| Nbr pièce(s) | 4 |
| Nbr chambre(s) | 3 |
| Surface | 91 m² |
| Etage | Oui |
| Mandat en exclusivité | Oui |
SITUER LE BIEN
CONTACTER L'AGENCE
Merci de renseigner votre e-mail pour que nous puissions vous renvoyer votre mot de passe.