
A vendre, Terrain
Plaine Saint Paul, Saint Paul (97460)
DESCRIPTIF DE L'ANNONCE
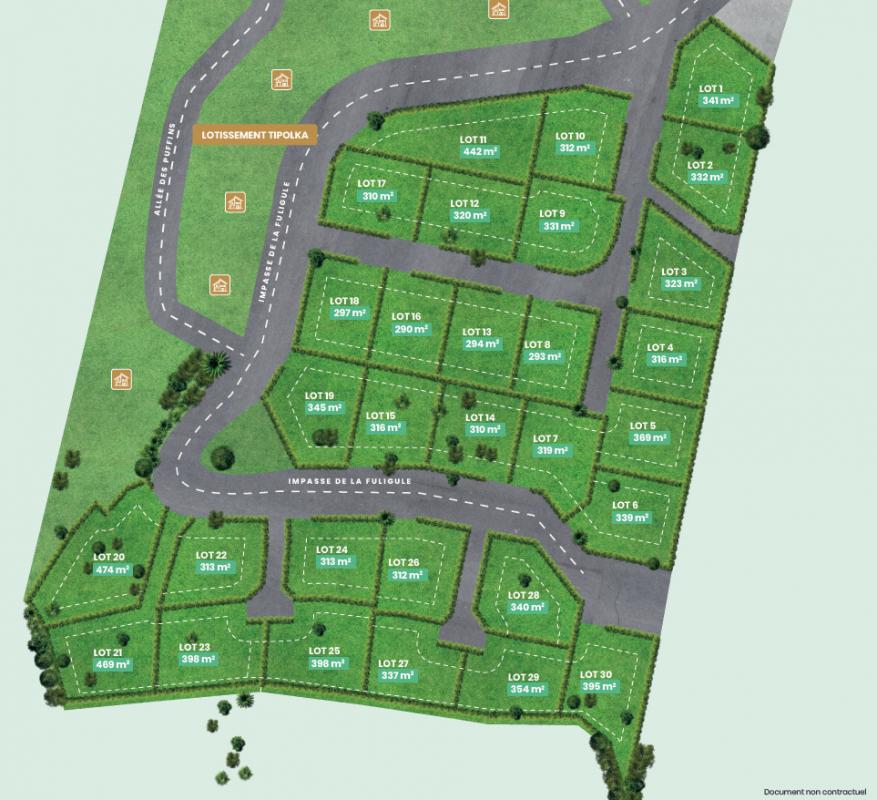
Entre Savanna et la Plaine Saint Paul, CBo Territoria développe au coeur du nouveau Quartier de Marie Caze, le lotissement Zoiseau Blanc.Découvrez ces parcelles viabilisées et prêtes à bâtir, à proximité du lycée Saint-Paul IV, du CHOR et des commerces de proximité, et devenez propriétaire dans un environnement privilégié et résidentiel de l'ouest.Nous vous proposons cette parcelle de 310 m2 qui n'attend plus que votre future maison. Prix de vente : 210 000 EUR FAI TTC Prix net vendeur : 198 608 EUR TTC Honoraires : 11 393 EUR TTC à la charge du vendeur Les informations sur les risques auxquels ce bien est exposé sont disponibles sur le site Géorisques : www.georisques.gouv.fr
Prix : 210 000 €
Référence Annonce 759-14
Consulter nos honoraires agences
Annonce redigée et publiée par un agent Mandataire
Caractéristiques
| Parue le | 27/03/2026 |
| Surface | 310 m² |
SITUER LE BIEN
CONTACTER L'AGENCE
ANNONCES SIMILAIRES
Merci de renseigner votre e-mail pour que nous puissions vous renvoyer votre mot de passe.